埼玉 クラブ ラウンジ スナック 深夜バー 許可 届出
許可申請、届出手続きを依頼された方、開業後に必要な書類(従業者名簿・雇用契約書・業務委託契約書など)のサポートもいたします。
なお、従業者名簿・雇用契約書・業務委託契約書については、業種に特化した内容のものです。
クラブ・ラウンジ・スナック 許可申請手続
■クラブやラウンジ、スナックなど、接待を伴う場合は飲食店営業許可の他、風俗営業の許可を要します。風俗営業許可申請にあたっては、許可申請書の他、以下の書類が必要です(個人の場合)。
・営業の方法を記載した書類
・営業所の使用について権原を有することを疎明する書類(使用承諾書・建物賃貸借契約書)
・全部事項証明書
・住民票
・身分証明書(本籍地の市区町村長発行)
・法務局登記官の発行する登記されていないことの証明書
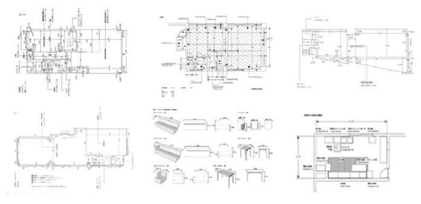
・営業所の平面図(照明設備・音響設備含む)及び営業所の周囲の略図
・求積図
・飲食店営業許可証の写し
・写真(管理者証用)2枚
・誓約書
※その他、建築確認書、用途地域証明書、取下げに関して異議申立てしない誓約書などが必要な場合もあります。詳細はお問い合わせ下さい。
クラブ・ラウンジ・キャバクラなど社交飲食店における営業所の構造・設備の技術上の基準
・客室の床面積は、和風の客室に係るものにあっては一室の床面積を9.5平方メートル以上とし、その他のものにあっては一室の床面積を16.5平方メートル以上とすること。ただし、客室の数が一室のみである場合は、この限りでない。
・客室の内部が当該営業所の外部から容易に見通すことができないものであること。
・客室の内部に見通しを妨げる設備を設けないこと。
・善良の風俗又は清浄な風俗環境を害するおそれのある写真、広告物、装飾その他の設備を設けないこと。
・客室の出入口に施錠の設備を設けないこと。ただし、営業所外に直接通ずる客室の出入口については、この限りでない。
・営業所内の照度が5ルクス以下とならないように維持されるため必要な構造又は設備を有すること。
・騒音又は振動の数値が条例で定める数値に満たないように維持されるため必要な構造又は設備を有すること。
・ダンスの用に供するための構造又は設備を有しないこと。
深夜バー(深夜酒類提供飲食店)開業 届出手続(深夜バー・ガールズバー)
■接待を伴わないバーなどについても、深夜営業を行う場合、深夜酒類提供飲食店営業の届出が必要となり、申請にあたっては営業開始届出書の他、営業の方法を記載した書類、営業所の平面図、住民票などの添付が求められます。
※ギャルズバー、レディスバー、ガールズバーについても、深夜営業を行う場合は届出が必要です。
平面図 求積図
ホステス・キャスト業務委託契約書、従業員雇用契約書についてもご相談下さい。
ホステス キャスト 業務委託契約書
風俗営業等の規制及び業務の適正化等に関する法律
(用語の意義)
第二条 この法律において「風俗営業」とは、次の各号のいずれかに該当する営業をいう。
一 キヤバレーその他設備を設けて客にダンスをさせ、かつ、客の接待をして客に飲食をさせる営業
二 待合、料理店、カフエーその他設備を設けて客の接待をして客に遊興又は飲食をさせる営業(前号に該当する営業を除く。)
三 ナイトクラブその他設備を設けて客にダンスをさせ、かつ、客に飲食をさせる営業(第一号に該当する営業を除く。)
四 ダンスホールその他設備を設けて客にダンスをさせる営業(第一号若しくは前号に該当する営業又は客にダンスを教授するための営業のうちダンスを教授する者(政令で定めるダンスの教授に関する講習を受けその課程を修了した者その他ダンスを正規に教授する能力を有する者として政令で定める者に限る。)が客にダンスを教授する場合にのみ客にダンスをさせる営業を除く。)
五 喫茶店、バーその他設備を設けて客に飲食をさせる営業で、国家公安委員会規則で定めるところにより計つた客席における照度を十ルクス以下として営むもの(第一号から第三号までに掲げる営業として営むものを除く。)
六 喫茶店、バーその他設備を設けて客に飲食をさせる営業で、他から見通すことが困難であり、かつ、その広さが五平方メートル以下である客席を設けて営むもの
七 まあじやん屋、ぱちんこ屋その他設備を設けて客に射幸心をそそるおそれのある遊技をさせる営業
八 スロットマシン、テレビゲーム機その他の遊技設備で本来の用途以外の用途として射幸心をそそるおそれのある遊技に用いることができるもの(国家公安委員会規則で定めるものに限る。)を備える店舗その他これに類する区画された施設(旅館業その他の営業の用に供し、又はこれに随伴する施設で政令で定めるものを除く。)において当該遊技設備により客に遊技をさせる営業(前号に該当する営業を除く。)
(営業の許可)
第三条 風俗営業を営もうとする者は、風俗営業の種別(前条第一項各号に規定する風俗営業の種別をいう。以下同じ。)に応じて、営業所ごとに、当該営業所の所在地を管轄する都道府県公安委員会(以下「公安委員会」という。)の許可を受けなければならない。
2 公安委員会は、善良の風俗若しくは清浄な風俗環境を害する行為又は少年の健全な育成に障害を及ぼす行為を防止するため必要があると認めるときは、その必要の限度において、前項の許可に条件を付し、及びこれを変更することができる。


